Trilocale in vendita

San Marino - Dogana
€ 230.000
3 locali 3 locali
76 Mq 76 Mq
1 bagno 1 bagno

Trilocale in vendita

San Marino - Dogana

Descrizione annuncio

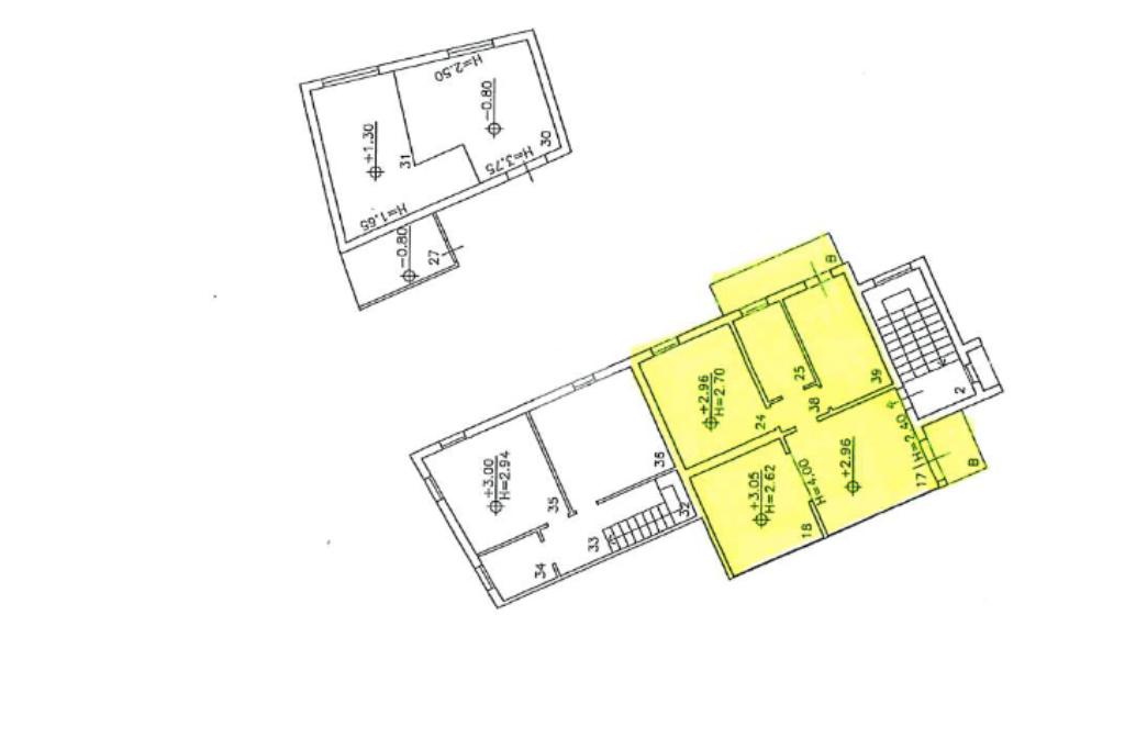
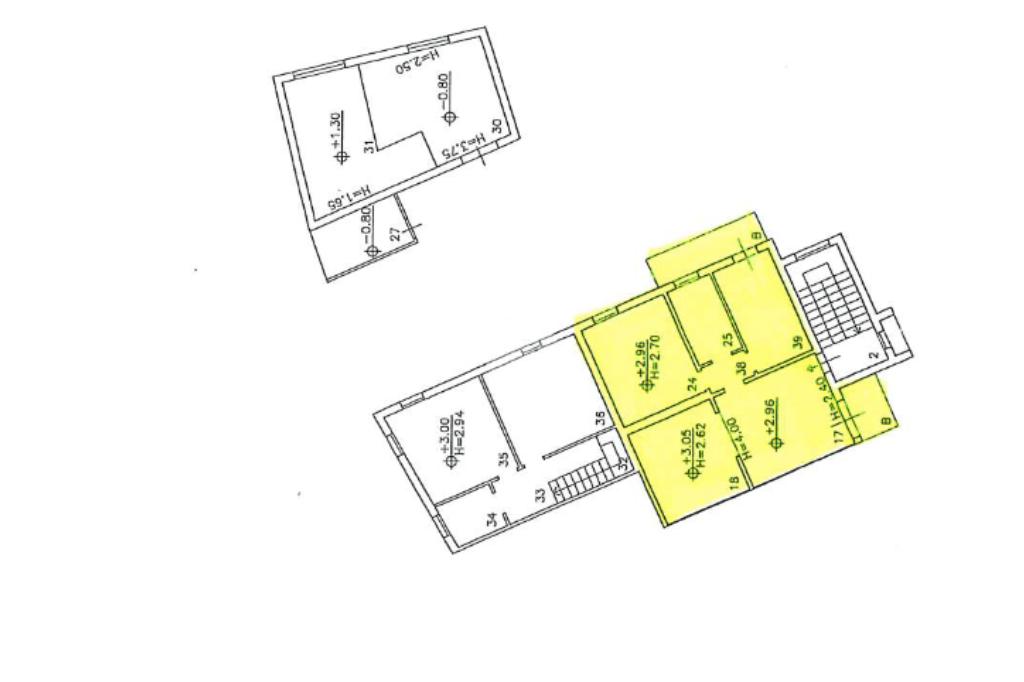
Dogana – Proponiamo in vendita un ampio e luminoso appartamento di circa 76mq, dotato di due camere da letto e valorizzato dalla presenza di due comodi terrazzi che garantiscono piacevoli spazi esterni e una buona vivibilità degli ambienti. L’immobile si trova in posizione centralissima, a pochi passi dal Parco Ausa e nelle immediate vicinanze di tutti i principali servizi, tra cui attività commerciali, ristoranti, supermercati e collegamenti, rendendolo particolarmente pratico per la vita quotidiana. La distribuzione funzionale degli spazi interni e la posizione strategica rendono questa soluzione ideale sia come abitazione principale sia come ottima opportunità di investimento, perfetta per essere messa a reddito.

Mostra tutto

Nelle vicinanze

Trasporto pubblico Trasporto pubblico
Via Antonio Canova
Via Antonio Canova
20 m
La Creta
La Creta
230 m
Scuole Scuole
Il Torrente
290 m
Scuola Infanzia Falciano
860 m
Scuola Media Serravalle
1,8 Km
Supermercati Supermercati
Titan COOP
840 m
Azzurro Shopping Center
1,4 Km
Bar Bar
Gelateria La Romana
280 m
Bar
1,2 Km
Ristoranti Ristoranti
Il Matterello
250 m
Vanilla Cafe
410 m
Plaza Cafè
1,4 Km
Ristorante Rinaldi
2,8 Km
Ristoranti
3,0 Km
Mostra tutto

Caratteristiche

Rif.:
61177405
Piano:
3 di 2 (ultimo Piano)
Posti auto:
1
Balconi:
2
Camere da letto:
2
Arredamento:
Completo
Mostra tutto
Prezzo Prezzo
€ 230.000
Rata mutuo Rata mutuo
€ 1.084 / mese
Spese annue Spese annue
€ 0
Proponi il tuo prezzoProponi il tuo prezzo

Classe Energetica

Questo immobile è esente da classe energetica
Anno di costruzione:
1990
Riscaldamento:
Autonomo
Tipo impianto:
A radiatori
Tipo alimentazione:
Metano

Ti interessa visionare l'immobile?

Fissa un appuntamento  Fissa un appuntamento

Richiedi informazioni

Clicca su Leggi per aprire l'informativa
* Questi campi sono obbligatori

Calcola il tuo mutuo

Semplice e senza impegno
Anticipo

( % )
Mutuo

( % )

pochi semplici passi

inserisci i tuoi dati
Questionario completato
Grazie per aver richiesto un appuntamento senza impegno con un nostro Consulente del Credito e Assicurativo.

Hai inserito correttamente tutti i dati necessari e a breve riceverai una e-mail con un link da convalidare per inviare i tuoi dati.
Affiliato
New House Srlsu
St.da Della Macallana, 3 47890 San Marino (SM)

Il nostro staff


  • Céline Ortolani
    Responsabile

  • Alessandro Chezzi
    Affiliato

  • Alessandro Deiana
    Collaboratore

  • Filippo Fabbri
    Collaboratore

  • Nicholas Pala
    Collaboratore

  • Giacomo Santarelli
    Collaboratore
St.da Della Macallana, 3 47890 San Marino (SM)
Zona: Acquaviva-Borgo Maggiore-Chiesanuova-Domagnano-Faetano-Fiorentino-Montegiardino-S.M Città-Serravalle
Mostra su mappa
Orari: Dal lunedì al venerdì - mattina 09-13 - pomeriggio 14.30 -19 ; sabato su appuntamento.
Affiliato
New House Srlsu
St.da Della Macallana, 3 47890 San Marino (SM)

2026 Tecnocasa Franchising S.p.A. - P. IVA 08365160152 - Via Monte Bianco 60/A 20089 Rozzano (MI). Ogni agenzia ha un proprio titolare ed è autonoma. Privacy policy | Policy utilizzo | Cookie policy